Type
Verbouwing - particulier
lokatie
Nijmegen
Status
voltooid
Jaar
2019

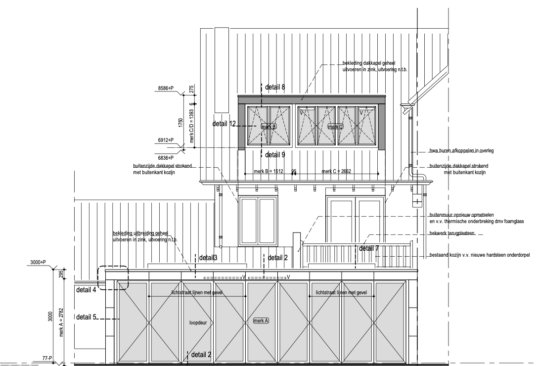
Aanbouw met vouwdeuren

Aanbouw haalt buiten naar binnen en vice-versa – Nijmegen

bouwkundige-tekening-studio-de-ruyterHatertseweg-nijmegen-studio-de-ruyter

Ontdek jouw mogelijkheden

  • Bouwkundig sterke oplossingen

  • Meer dan 25 jaar ervaring

  • Tijdloos maatwerk